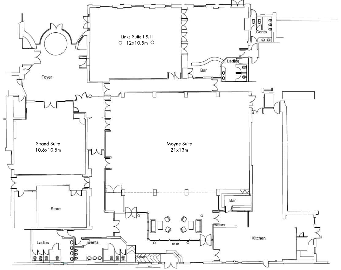
Meeting Rooms 402, 405 & 407
View here
Conference Venues – Moyne, Links and Strand
Accessibility Tools